Skip to content
HOME
SERVICES
Sri Vastu Model Plans
CONTACTUS
Sri Vastu
పేరు ఆధారంగా ప్రధాన సింహ ద్వారం
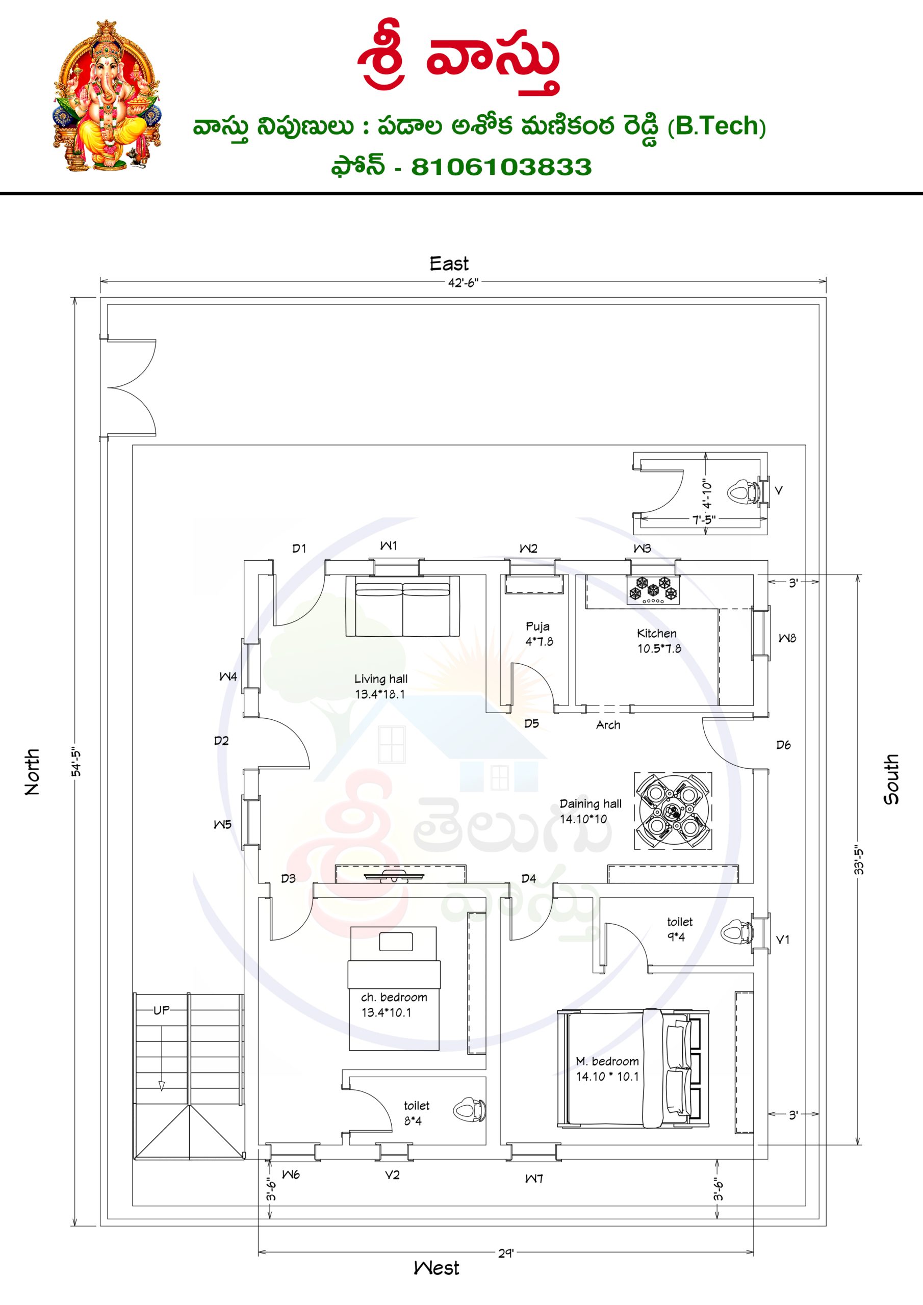
East Fasing 2bhk Plan
east fasing 2bhk vastu plan